Superbe propriété dans le centre OIne

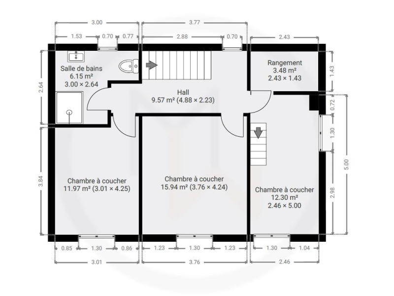
Magnifique propriété (+/- 192m² d’après PEB), 3 chambres sise sur un terrain arboré de +/-2.438m² située à 2 pas du centre du village de Olne (classé parmi " les Plus Beaux Villages de Wallonie" depuis 2007). Elle se compose comme suit : sous-sol : garage +/- 35m², caves +/- 8m² et local chaufferie. Rez-de-chaussée : hall d’entrée avec vestiaire et WC indépendant, séjour +/- 41m², cuisine (taque vitrocéramique, lave-vaisselle, hotte). 1er étage : hall de nuit +/- 10m², 3 chambres (+/- 12, 12 et 16m²), salle de bains (douche, lavabo et wc). 2ème étage : espace grenier. A l’extérieur : une terrasse +/- 40m² idéalement orientée à l’avant de la maison, une terrasse à l’arrière, un abri de jardin +/- 17m², un parking extérieur et un superbe jardin. Chauffage central mazout, châssis double vitrage PVC, cassette à bois, toiture rénovée il y a 3 ans. PEB : D, E Spéc: 337kWh/m².an, E totale 64.775/an, n° 20250909017902. R.C. : 718€, Superficie totale (terrain) : 2438m². Informations et plans donnés à titre indicatifs et non contractuels. Situation idéale ! A découvrir ! www.waucomont.be

Classe énergétique Énergie spécifique Énergie totale Émission de CO2 PEB No.
D 337kWh/m².an 64775kWh.an 83kg CO2/an 20250909017902

Informations générales

  • Type de bien Maisons / Propriétés
  • Sous-catégorie Villa
  • Disponibilité Date à convenir
  • Etat À rafraîchir
  • Nombre d'étages 2
  • Nombre de façades 4

Informations sur l'extérieur

  • Surface parcellaire 2438,00 m²
  • Garage 1
  • Parking 3
  • Environnement Campagne non-isolée
  • Terrasse 1
  • Surface terrasse 1 40 m²

Informations sur l'intérieur

  • Surface habitable 192,00 m²
  • Cuisine Oui
  • Type de cuisine Aménagée
  • Nombre de chambres 3
  • Nombre de salle de bain 1
  • Type d'énergie du chauffage Mazout

Informations financières

  • Revenu cadastral 718,00 €