Superbe villa 4ch sur un terrain arboré de +/-3000m²

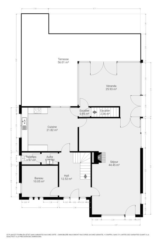
OPTION! OPTION! Magnifique villa 4 façades (+/-258m² d’après PEB), 4 chambres avec garage et beau jardin arboré idéalement situé à deux pas du centre de Blegny et se composant comme suit : Sous-sol : garage (+/- 45m²) et 3 caves (+/- 5, 8 et 12m²). Rez-de-chaussée : hall d’entrée (+/- 12m²) avec toilette indépendante, spacieux séjour (+/- 44m²), cuisine récente hyper-équipée +/- 22m² (four, taque induction, hotte, frigo) et lumineuse véranda (+/- 26m²) avec vue sur le jardin. 1er étage : hall de nuit (+/- 15m²), 4 chambres (+/- 10, 11, 20 et 21m²), salle de bains (baignoire, douche, évier et WC) et un grenier. A l’extérieur, vous bénéficierez d’un superbe jardin arboré, d’une terrasse, d’un kiosque et d’abris de jardin. Chauffage central mazout, châssis PVC double vitrage, citerne eau de pluie, cassette à bois. R.C.: 1.220€, superficie totale terrain : 3.090 m². PEB : C, E Spéc: 214 kWh/m².an, E totale: 55.354 kWh/an, n° 20250925005745. Informations et plans éventuels donnés à titre indicatif et non contractuels. Magnifique villa dans un cadre bucolique! www.waucomont.be
Classe énergétique Énergie spécifique Énergie totale Émission de CO2 PEB No.
C 214kWh/m².an 55354kWh.an 54kg CO2/an 20250925005745

Informations générales

  • Type de bien Maisons / Propriétés
  • Sous-catégorie Villa
  • Disponibilité Date à convenir
  • Etat Bon
  • Année de construction 1965
  • Nombre d'étages 0
  • Nombre de façades 4

Informations sur l'extérieur

  • Surface parcellaire 3090,00 m²
  • Garage 2
  • Parking 1
  • Environnement Campagne non-isolée
  • Terrasse 1
  • Surface terrasse 1 56 m²

Informations sur l'intérieur

  • Surface habitable 258,00 m²
  • Cuisine Oui
  • Type de cuisine Aménagée
  • Nombre de chambres 4
  • Type d'énergie du chauffage Mazout

Informations financières

  • Revenu cadastral 1220,00 €