Superbe villa avec jardin proche de Visé

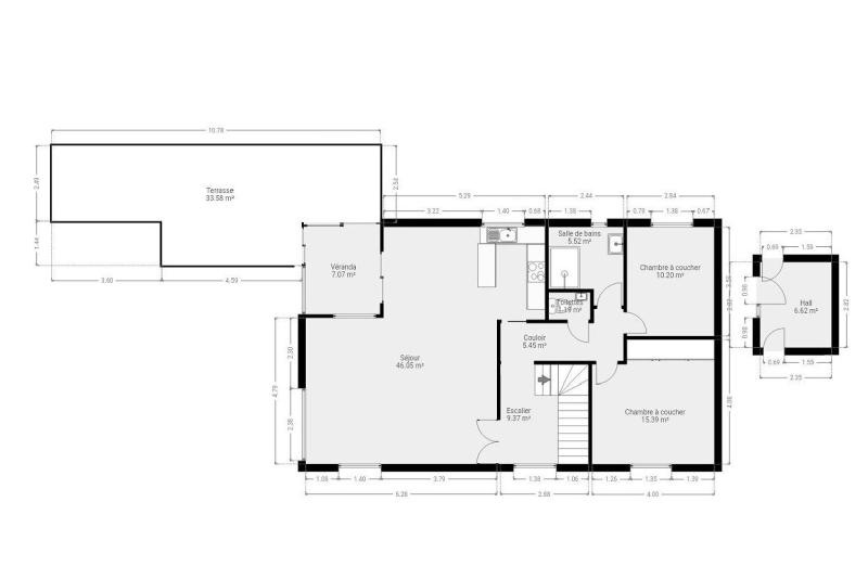
Magnifique villa (+/-144m² d’après PEB), 3 chambres avec double garage, terrasse avec vue dégagée et jardin arboré, idéalement située dans une rue calme à 5 minutes du centre de Visé. Elle se compose comme suit : Rez-de-chaussée : hall d’entrée, une chambre à coucher (+/- 18m²), spacieux double garage (+/- 45m²) et une cave (+/-14m²). Au 1er étage : vaste séjour (+/-46m²), cuisine équipée (four, micro-ondes, taque vitrocéramique, hotte, frigo et lave-vaisselle), véranda (+/- 7m²) avec accès direct à une terrasse (+/-34m²), hall de nuit avec espace bureau, toilette indépendants, salle de douche (douche et lavabo) et 2 chambres (+/- 10 et 15m²). Chauffage via pompe à chaleur et poêle à pellets, 20 panneaux photovoltaïques, châssis PVC double vitrage, électricité non conforme. PEB : C, E Spéc: 224kWh/m².an, E totale 32.232kWh/an, n° 20251110009653. R.C. : 1.291€, Superficie totale (terrain) : 1995m². Informations données à titre indicatif et non contractuelles. Villa coup de cœur ! A découvrir ! www.waucomont.be

Classe énergétique Énergie spécifique Énergie totale Émission de CO2 PEB No.
C 224kWh/m².an 32232kWh.an 58kg CO2/an 20251110009653

Informations générales

  • Type de bien Maisons / Propriétés
  • Sous-catégorie Villa
  • Disponibilité À l'acte
  • Etat Bon
  • Nombre d'étages 1
  • Nombre de façades 4

Informations sur l'extérieur

  • Surface parcellaire 1995,00 m²
  • Garage 2
  • Environnement Campagne non-isolée
  • Terrasse 1
  • Surface terrasse 1 34 m²

Informations sur l'intérieur

  • Surface habitable 144,00 m²
  • Cuisine Oui
  • Type de cuisine Equipée et aménagée
  • Nombre de chambres 3
  • Nombre de salle de bain 1
  • Type d'énergie du chauffage Pompe à chaleur

Informations financières

  • Revenu cadastral 1291,00 €