Superbe villa basse énergie à Sart avec piscine au calme

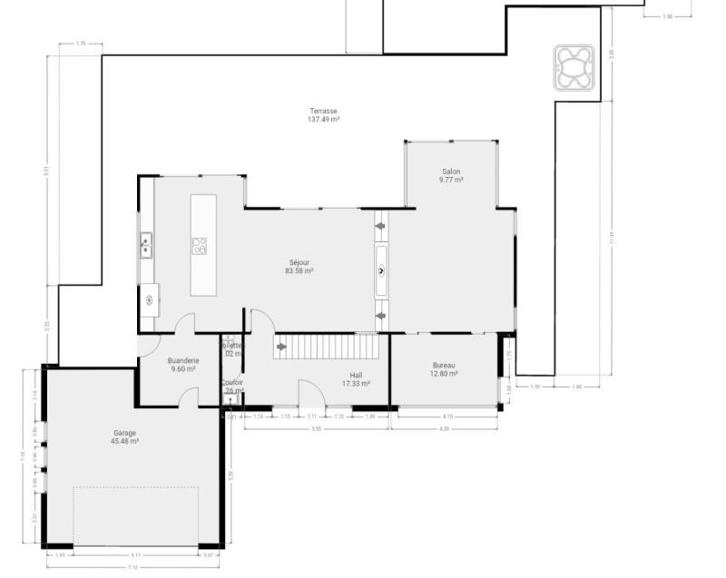
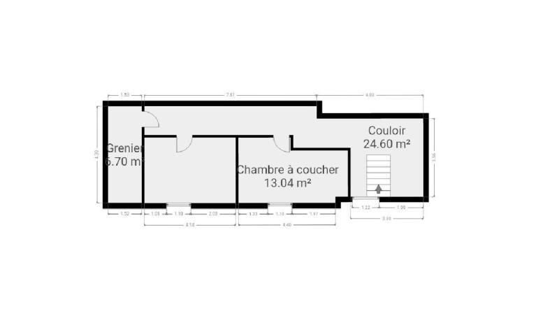
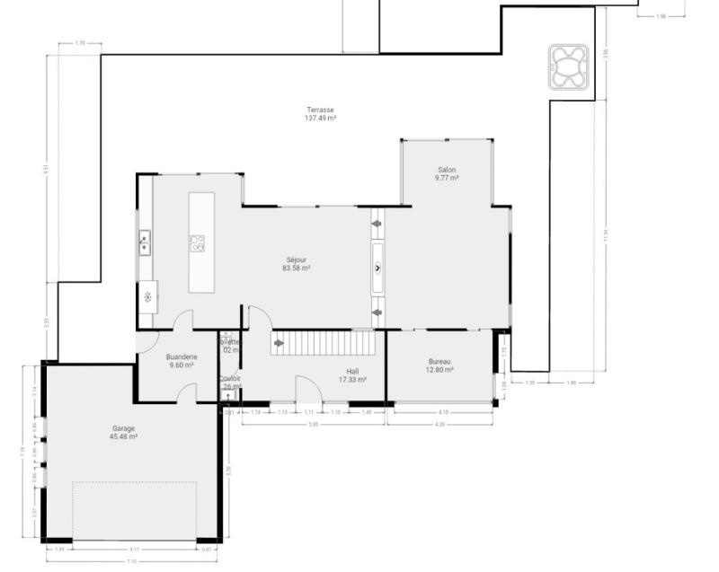
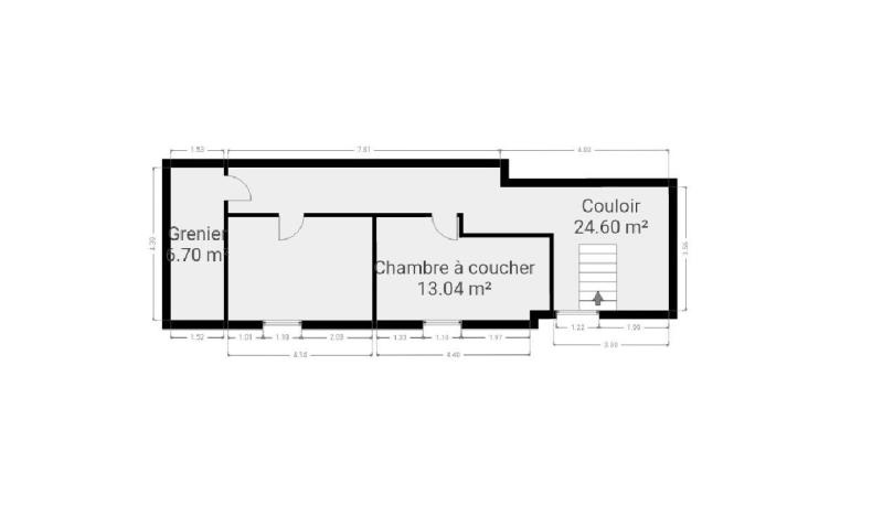
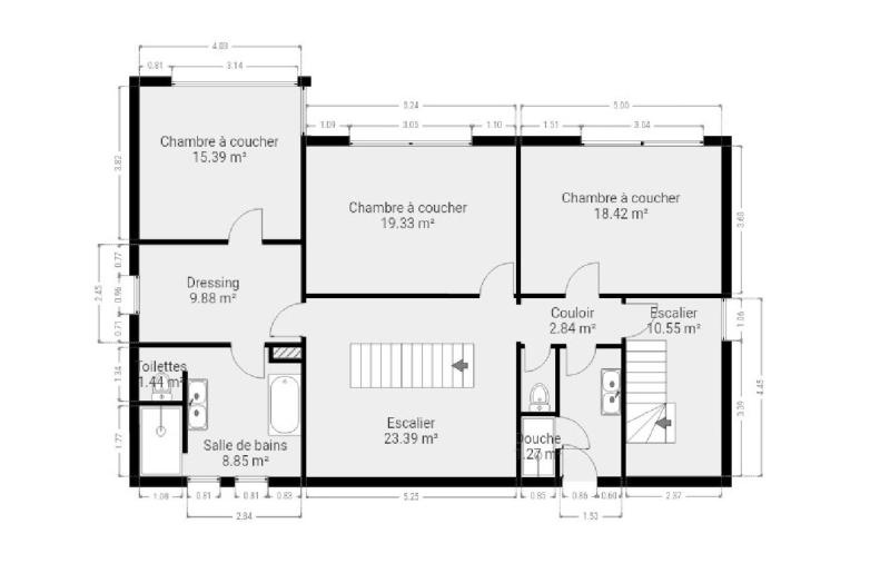
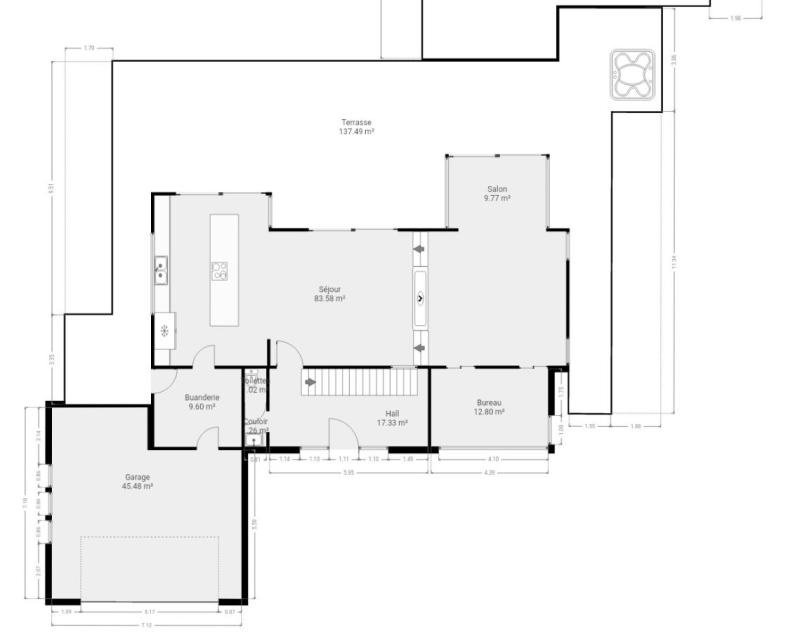
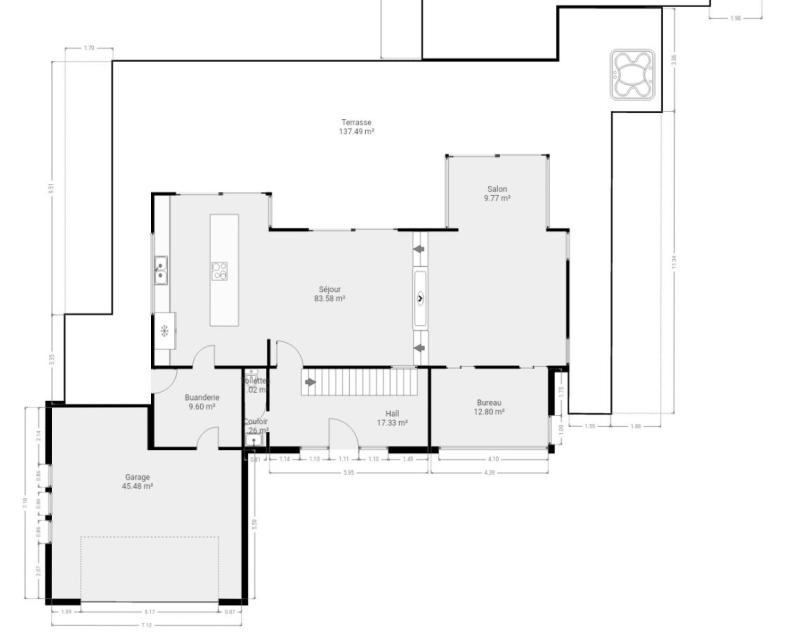
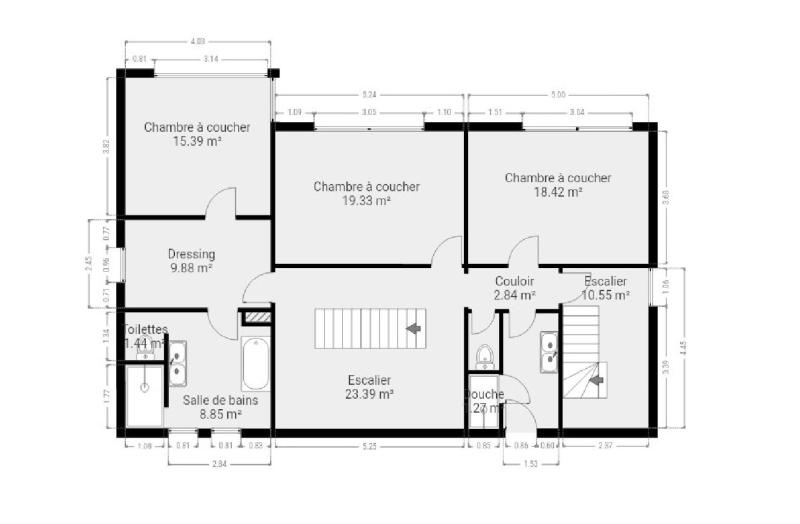
Magnifique villa basse énergie (+/- 435m² d’après PEB) 5 chambres avec jardin, terrasse et piscine idéalement située en retrait de la voirie à Jalhay. Elle se compose comme suit : Rez-de-chaussée : hall d’entrée +/- 17m², wc indépendant, superbe salon +/-23m², salle à manger +/- 56 m² avec cuisine ouverte hyper-équipée (frigo américain, taque, hotte, four, micro-ondes, lave-vaisselle), bureau +/-13m², jardin d’hiver +/- 10m² et double garage +/- 45m². 1er étage : hall de nuit +/- 23m², suite parentale (chambre +/- 15m², dressing +/- 10m² et salle de bains (baignoire, douche italienne, double lavabo, wc), 2 chambres +/- 18 et 19m², wc indépendant, salle de douches (douche italienne, lavabo). 2ème étage : hall de nuit +/-24m², 2 chambres +/- 13 et 14m² et un grenier. La villa se situe dans un quartier calme, proche de toutes les commodités et bénéficie d'un extérieur aménagé (piscine, terrasses, portail électrique) ainsi que d’un superbe terrain de +/- 4.514m². Chauffage central via pompe à chaleur (chauffage sol), châssis PVC double vitrage avec moustiquaires, 26 panneaux photovoltaïques, système d’alarme et caméra, système de ventilation, citerne eau de pluie 10000L, nombreuses armoires rangements sur mesure. Date de construction 2014. PEB : A, E Spéc: 77kWh/m².an, E totale: 33.561kWh/an, n° 20250828008707. R.C. : 2.345€, Superficie totale : 4.514m². Opportunité unique à saisir ! Superbe construction « basse énergie » avec terrain ! Informations et plans donnés à titre indicatif et non contractuels. www.waucomont.be.

Classe énergétique Énergie spécifique Énergie totale Émission de CO2 PEB No.
A 77kWh/m².an 33561kWh.an 20kg CO2/an 20250828008707

Informations générales

  • Type de bien Maisons / Propriétés
  • Sous-catégorie Villa
  • Disponibilité Date à convenir
  • Etat Très bon
  • Année de construction 2014
  • Nombre d'étages 2
  • Nombre de façades 4

Informations sur l'extérieur

  • Surface parcellaire 4514,00 m²
  • Garage 2
  • Parking 6
  • Environnement Campagne isolée
  • Terrasse 1
  • Surface terrasse 1 137 m²

Informations sur l'intérieur

  • Surface habitable 435,00 m²
  • Cuisine Oui
  • Type de cuisine Super équipée
  • Nombre de chambres 5
  • Type d'énergie du chauffage Pompe à chaleur

Informations financières

  • Revenu cadastral 2345,00 €