Superbe villa de 2019 avec vue dégagée

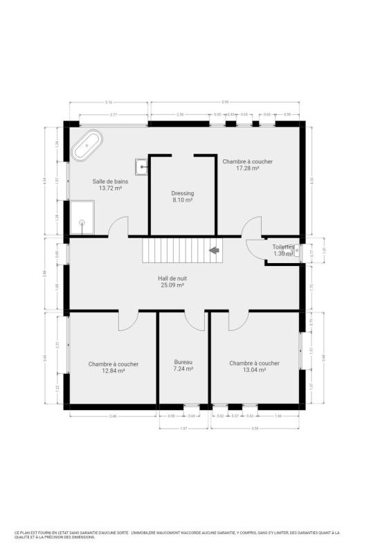
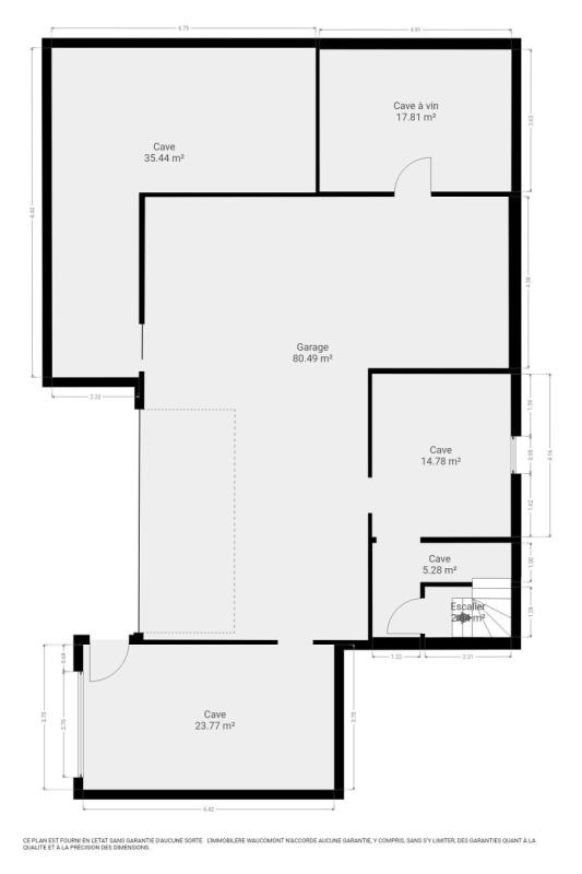
! OPTION ! OPTION ! OPTION ! Magnifique villa basse énergie construite en 2019 (+/- 302m² d’après PEB) 3 chambres avec jardin, terrasse et garage idéalement située à Ayeneux. Elle se compose comme suit : Rez-de-chaussée : hall d’entrée, toilette indépendante, spacieux séjour (+/- 80m²) avec cuisine ouverte hyper-équipée (lave-vaisselle, hotte, four, micro-ondes, frigo américain, taque induction) et une buanderie (+/- 10m²). 1er étage : 3 chambres (+/- 13, 13 et 25m²) dont une suite parentale avec dressing, salle de bains (baignoire, douche italienne, lavabo, wc), et une salle de douches (dont les travaux sont à réaliser). Combles aménagés en salle de jeux (+/- 33m²) et un bureau (+/-23m²). Au sous-sol : un grand garage (+/- 80m²), 4 caves (+/- 5, 14, 24 et 35m²). A l’extérieur, vous bénéficierez d’un jardin orienté sud et d’une spacieuse terrasse avec vue dégagée directement accessible depuis les pièces de vie. Chauffage central au gaz de ville, panneaux photovoltaïques, châssis PVC double vitrage, système d’alarme, insert gaz, citerne eau de pluie 10.000L. PEB : A+, E. spéc.: 21 kWh/m².an, E. totale : 6.254 kWh/an, n° 20260129501610. R.C. : 1.619€, Superficie totale (terrain): 1.804m². Informations données à titre indicatif et non contractuelles. Superbe construction proche de toutes les commodités ! Opportunité unique dans la région ! www.waucomont.be
Classe énergétique Énergie spécifique Énergie totale Émission de CO2 PEB No.
A+ 21kWh/m².an 6254kWh.an 5kg CO2/an 20260129501610

Informations générales

  • Type de bien Maisons / Propriétés
  • Sous-catégorie Villa
  • Disponibilité Date à convenir
  • Etat Excellent
  • Année de construction 2019
  • Nombre d'étages 0
  • Nombre de façades 4

Informations sur l'extérieur

  • Surface parcellaire 1804,00 m²
  • Garage 3
  • Parking 6
  • Environnement Campagne non-isolée

Informations sur l'intérieur

  • Surface habitable 302,00 m²
  • Cuisine Oui
  • Type de cuisine Equipée
  • Nombre de chambres 3
  • Nombre de salle de bain 1
  • Salle de douche 1
  • Type d'énergie du chauffage Gaz

Informations financières

  • Revenu cadastral 1619,00 €