Superve villa avec terrasse et jardin

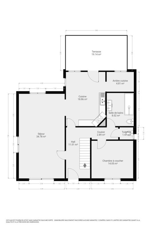
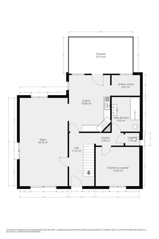
Magnifique villa (+/- 169m² d’après PEB) 3 à 4 chambres, deux garages, idéalement située à Bombaye. Elle se compose comme suit : Rez-de-chaussée : hall d’entrée (+/- 11m²), spacieux séjour (+/-35m²) avec cuisine équipée ouverte (+/- 19m²) (four, taque vitrocéramique, hotte, lave-vaisselle) donnant accès à une jolie terrasse (+/- 19m²) avec vue dégagée, arrière-cuisine, une chambre (+/- 14m²), salle de bains (douche italienne, 2 lavabos et wc) et toilette indépendante. 1er étage : spacieux hall de nuit avec espace bureau (+/-18m²), 2 chambres (+/-14 et 15m²) et des greniers de rangement. Sous-sol : caves (+/- 5, 7, 9, 10, 13 et 19m²) et 2 garages (+/- 19 et 35m²). A l’extérieur, vous bénéficierez également d’un joli jardin et d’une allée latérale privative. Chauffage central mazout, poêle à pellets, châssis double vitrage PVC, 15 panneaux photovoltaïques (2022), système d’alarme, boiler chauffe-eau thermodynamique. PEB: C, E. spéc.: 250 kWh/m².an, E. totale: 42.339 kWh/an, n° 20250526016371. R.C.: 1.290€, superficie totale terrain: 1.292 m². Informations données à titre indicatif et non contactuelles. Superbe et spacieuse villa familiale! Belle opportunité! www.waucomont.be

Classe énergétique Énergie spécifique Énergie totale Émission de CO2 PEB No.
C 250kWh/m².an 42339kWh.an 61kg CO2/an 20250526016371

Informations générales

  • Type de bien Maisons / Propriétés
  • Sous-catégorie Villa
  • Disponibilité Date à convenir
  • Etat Non précisé
  • Année de construction 1980
  • Rénovation 2022
  • Nombre d'étages 1
  • Nombre de façades 4

Informations sur l'extérieur

  • Surface parcellaire 1292,00 m²
  • Garage 2
  • Parking 3
  • Environnement Campagne non-isolée
  • Terrasse 1
  • Surface terrasse 1 19 m²

Informations sur l'intérieur

  • Surface habitable 169,00 m²
  • Cuisine Oui
  • Type de cuisine Equipée et aménagée
  • Nombre de chambres 3
  • Nombre de salle de bain 1
  • Type d'énergie du chauffage Mazout

Informations financières

  • Revenu cadastral 1290,00 €