Tilff - Maison 3 chambres, garage et jardin

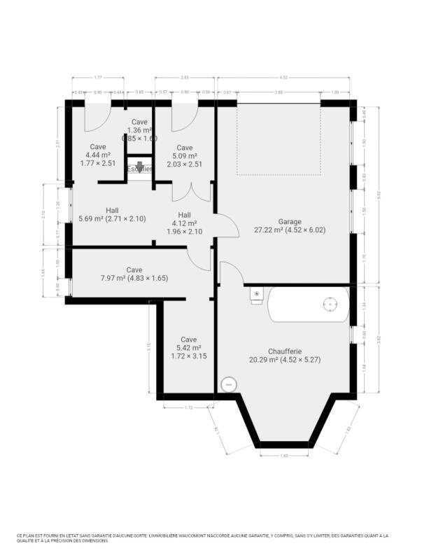
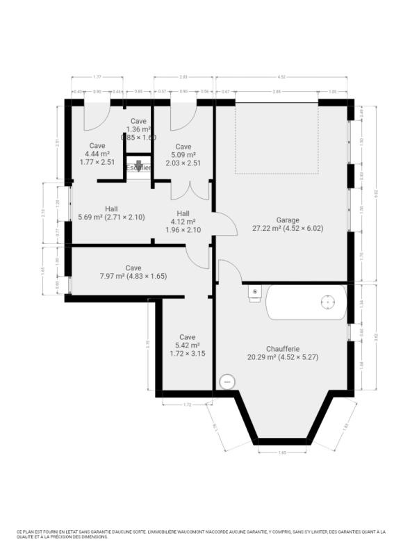
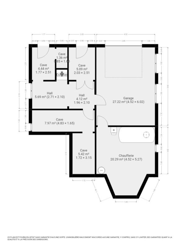
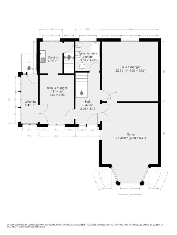
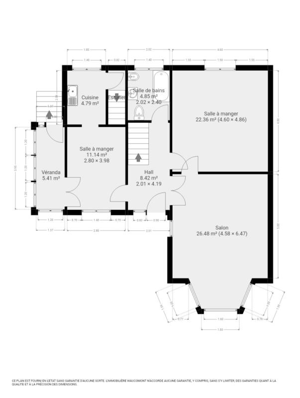
! OPTION ! OPTION ! Lumineuse et jolie maison 4 façades à rafraîchir/rénover (+/- 234 m² d'après PEB, garage et caves compris) 3 chambres avec garage et jardin, située à deux pas du centre de Tilff. Elle se compose comme suit: Sous-sol: caves (+/- 51m²) et garage (+/- 27m²) avec porte sectionnelle motorisée et beau jardin orienté Ouest. Rez-de-chaussée: hall d'entrée, spacieux séjour (+/- 48m²), salle à manger (+/- 11m²), cuisine aménagée (mobilier, évier), salle de bains (baignoire, lavabo, wc, bidet) et petite véranda (+/- 5m²). 1er étage: hall de nuit et 3 chambres (2 de 11m² et une de 22m²). Chauffage central au mazout (chaudière récente), châssis simple vitrage bois (en majorité) et double vitrage PVC. PEB : F, Spec: 475 kWh/m2.an, E totale : 111.365 kWh/an, n°20241125004400. R.C. : 1136€. Superficie totale (terrain) : 702m². Belle situation ! Opportunité à saisir ! Informations données à titre indicatif et non-contractuelle. www.waucomont.be
Classe énergétique Énergie spécifique Énergie totale Émission de CO2 PEB No.
F 475kWh/m².an 111365kWh.an 118kg CO2/an 20241125004400

Informations générales

  • Type de bien Maisons / Propriétés
  • Sous-catégorie Maison
  • Disponibilité À l'acte
  • Etat Non précisé
  • Année de construction 1958
  • Nombre d'étages 0
  • Nombre de façades 4

Informations sur l'extérieur

  • Surface parcellaire 702,00 m²
  • Garage 1
  • Parking 3

Informations sur l'intérieur

  • Surface habitable 234,00 m²
  • Cuisine Oui
  • Type de cuisine Aménagée
  • Nombre de chambres 3
  • Nombre de salle de bain 1
  • Type d'énergie du chauffage Mazout

Informations financières

  • Revenu cadastral 1136,00 €