Villa 3 ch, beau jardin et piscine

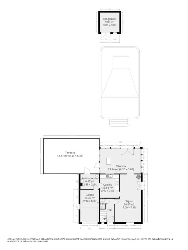
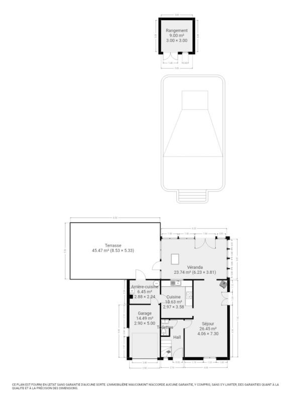
OPTION! OPTION !Agréable villa 4 façades construite en 1997 (+/- 169 m² d’après PEB) 3 chambres, garage, beau jardin avec piscine idéalement située au fond d’une rue sans issue d’un lotissement calme de Saive, à proximité des toutes les commodités. Elle se compose comme suit : Sous-sol : vides ventilés. Rez-de-chaussée : hall d’entrée avec toilette indépendante, spacieux et lumineux séjour +/- 50 m² avec poêle à pellets et partie véranda, cuisine semi- équipée +/- 11 m² (four, taque à induction, hotte) en partie ouverte sur le séjour, arrière-cuisine +/- 6m², garage +/- 14 m² avec porte sectionnelle motorisée, terrasse +/- 45 m², beau jardin avec abri et piscine chauffée équipée d’un abri télescopique. 1er étage : palier, 3 chambres (+/- 11, 11 et 15 m²), salle de bains (baignoire, douche, lavabo, wc) avec buanderie en enfilade. Chauffage central au mazout, châssis double vitrage PVC (sauf une porte arrière en bois) avec volets électriques en majorité, citerne d’eau de pluie, 23 panneaux photovoltaïques, séparation des niveaux en béton, système d’alarme, … R.C. : 919€, superficie totale parcelle : 601 m². PEB : C, E Spéc : 194 kWh/m².an, E totale : 32.859 kWh/an, n° 20250512015847. Agréable endroit ! Informations données à titre indicatif et non contractuelles. www.waucomont.be
Classe énergétique Énergie spécifique Énergie totale Émission de CO2 PEB No.
C 194kWh/m².an 32859kWh.an 48kg CO2/an 20250512015847

Informations générales

  • Type de bien Maisons / Propriétés
  • Sous-catégorie Villa
  • Disponibilité À l'acte
  • Etat Non précisé
  • Nombre d'étages 0
  • Nombre de façades 4

Informations sur l'extérieur

  • Surface parcellaire 601,00 m²
  • Garage 1
  • Terrasse 1
  • Surface terrasse 1 45 m²

Informations sur l'intérieur

  • Surface habitable 169,00 m²
  • Cuisine Oui
  • Type de cuisine Aménagée
  • Nombre de chambres 3
  • Type d'énergie du chauffage Mazout

Informations financières

  • Revenu cadastral 919,00 €