Villa avec piscine avec parcelle de 2.747m²

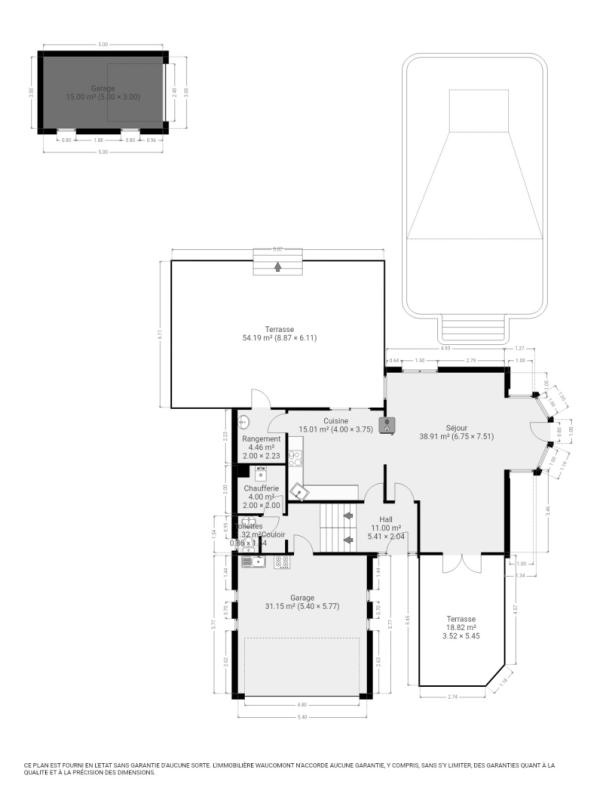
Belle villa de 2008 (+/- 249 m² d'après PEB) située en retrait de la route sur une parcelle de terrain de +/- 2.747 m², 4 chambres, piscine, terrasses, garages, sur les hauteurs de Vivegnis (limite Oupeye) dans un agréable endroit calme. Elle se compose comme suit: Rez-de-jardin: hall d'entrée, wc indépendant, local chaufferie, garage +/- 31 m². Rez-de-chaussée : lumineux séjour (+/- 53 m²) avec cuisine ouverte équipée (taque vitrocéramique, hotte, four, frigo-congélateur, lave-vaisselle), arrière cuisine (+/- 4m²), 2 terrasses (+/- 18 et 54 m²), piscine, jardin arboré avec 2ème garage (avec porte motorisée). 1er étage:salle de douches (douche, lavabo, wc), hall de nuit, 4 chambres (+/- 14,14,15 et 19 m²), salle de bains (baignoire balnéo,douche, double lavabo, wc), grenier de rangement. Chauffage central au gaz (chauffage sol et radiateurs), châssis double vitrage PVC, 21 panneaux photovoltaïques, système d'alarme, klinkers autour de la maison, accessible via une allée priative (en copropriété). PEB: D, E Spéc: 327 kWh/m².an, E totale: 81 341 kWH/an, n° 20250207005490. R.C.: 1.472€. Superficie terrain : 2.747 m². Belle situation! Agréable endroit calme! Informations données à titre indicatif et non contractuelles. www.waucomont.be
Classe énergétique Énergie spécifique Énergie totale Émission de CO2 PEB No.
D 327kWh/m².an 81341kWh.an 56kg CO2/an 20250207005490

Informations générales

  • Type de bien Maisons / Propriétés
  • Sous-catégorie Maison
  • Disponibilité À l'acte
  • Etat Très bon
  • Année de construction 2008
  • Nombre d'étages 2
  • Nombre de façades 4

Informations sur l'extérieur

  • Surface parcellaire 2747,00 m²
  • Garage 2
  • Parking 10
  • Terrasse 1
  • Surface terrasse 1 55 m²

Informations sur l'intérieur

  • Surface habitable 249,00 m²
  • Cuisine Oui
  • Type de cuisine Equipée
  • Nombre de chambres 4
  • Nombre de salle de bain 1
  • Salle de douche 1
  • Type d'énergie du chauffage Gaz

Informations financières

  • Revenu cadastral 1472,00 €