Villa d'architecte avec possibilité libérale!

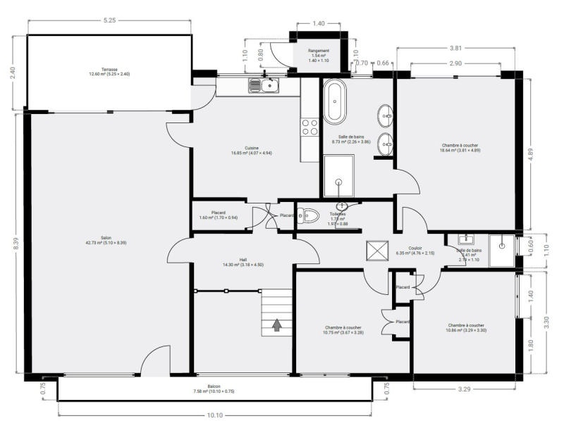
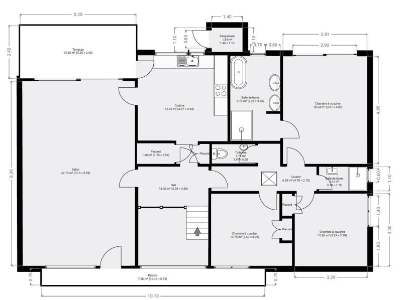
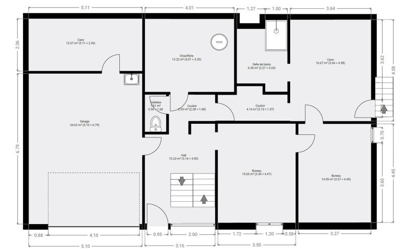
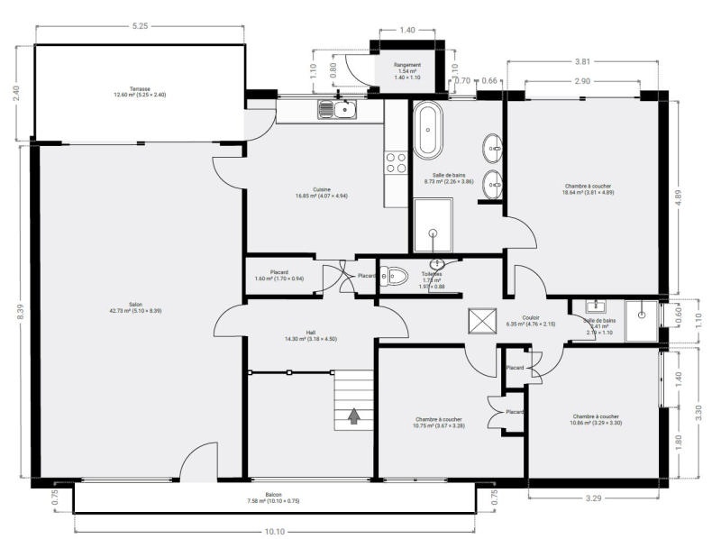
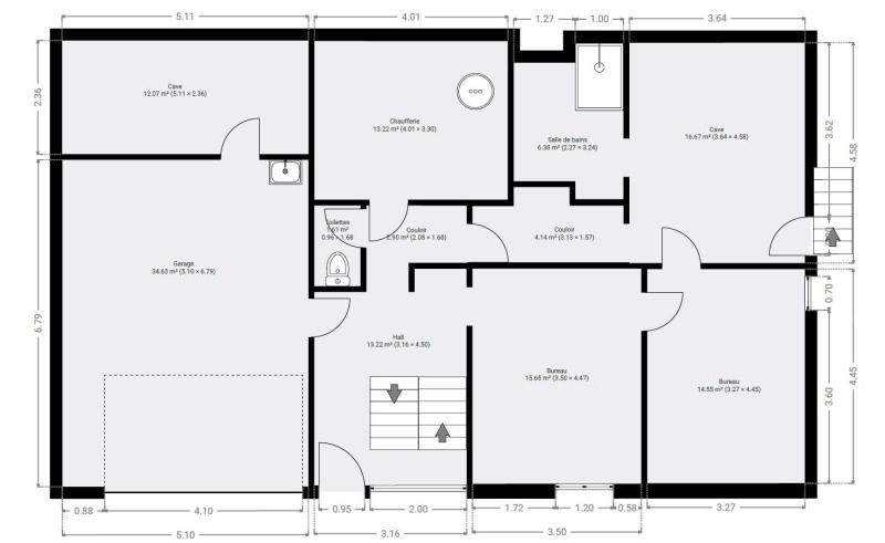
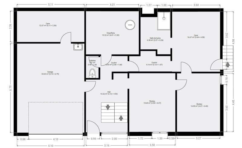
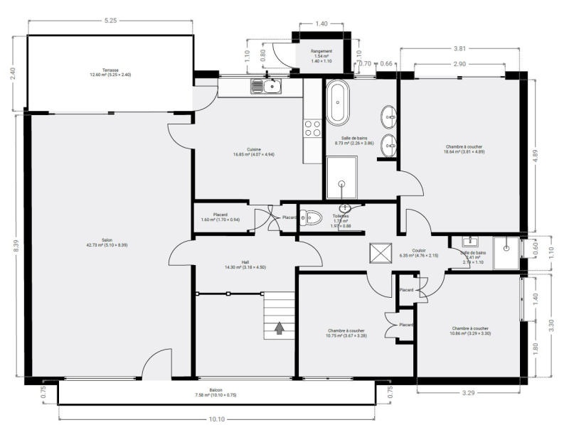
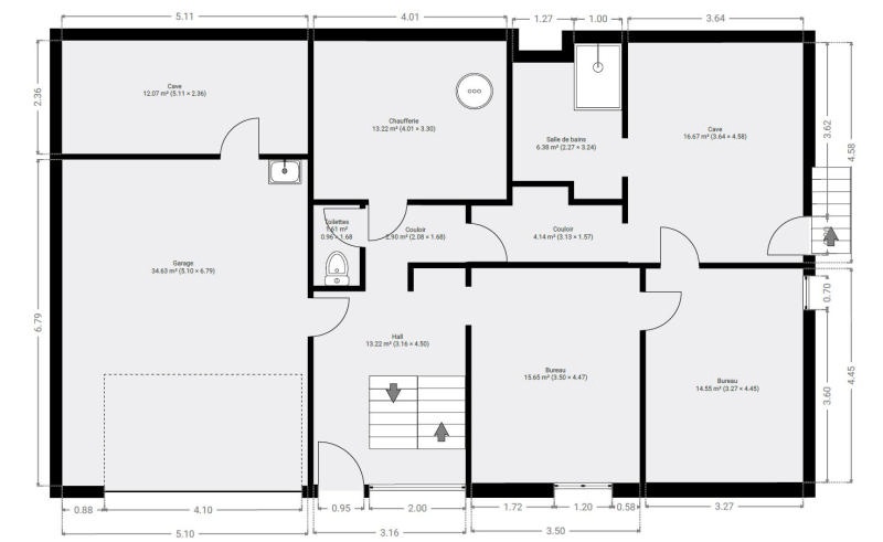
Magnifique villa (+/- 222m² d’après PEB) 3 à 4 chambres avec jardin située à Barchon. Elle se compose comme suit : Rez-chaussée : hall d’entrée +/- 13m², spacieux garage +/- 35m², cave à vin +/-12m², 2 bureaux de +/- 15m² chacun (idéal pour profession libérale) avec une salle d’eau, toilette indépendante, cave +/- 17m² et local chaufferie. 1er étage : superbe et lumineux séjour +/- 43m² avec accès direct à la terrasse et au jardin, cuisine +/- 17m² (four, taque vitrocéramique, hotte, lave-vaisselle), hall de nuit avec espace rangement, wc indépendant, 3 chambres (+/- 11, 11 et 19m²) dont une suite parentale avec salle de bains (baignoire, douche italienne et double vasque) et accès direct au jardin ainsi qu'une salle de douches (douche et lavabo). Cette propriété allie modernité et matériaux de qualité. Elle se situe à proximité de toutes les commodités (commerces, accès autoroutiers, transports en commun). Chauffage central au gaz, électricité conforme, châssis double vitrage bois, toiture rénovée et isolée en 2019, 38 panneaux photovoltaïques, cassette à bois. PEB : C, E Spéc: 253kWh/m².an, E totale: 56.255kWh/an, n° 20250610016247. R.C. : 1.965€. Superficie totale : 1.097m². Superbe opportunité à saisir! Informations données à titre indicatif et non contractuelles.www.waucomont.be.
Classe énergétique Énergie spécifique Énergie totale Émission de CO2 PEB No.
C 253kWh/m².an 56255kWh.an 42kg CO2/an 20250610016247

Informations générales

  • Type de bien Maisons / Propriétés
  • Sous-catégorie Villa
  • Disponibilité À l'acte
  • Etat Très bon
  • Année de construction 1973
  • Nombre d'étages 1
  • Nombre de façades 4

Informations sur l'extérieur

  • Surface parcellaire 1097,00 m²
  • Garage 4
  • Parking 4
  • Environnement Campagne non-isolée
  • Terrasse 1
  • Surface terrasse 1 12 m²

Informations sur l'intérieur

  • Surface habitable 222,00 m²
  • Cuisine Oui
  • Type de cuisine Equipée et aménagée
  • Nombre de chambres 3
  • Type d'énergie du chauffage Gaz

Informations financières

  • Revenu cadastral 1965,00 €